Westcott Way, Abington Vale
Price: £350,000
Property Description
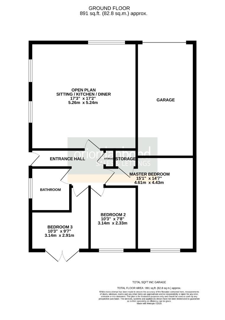
This immaculate three bedroom detached bungalow is located within the sought after area of Abington Vale. This home has been fully refurbished and improved by the current owners to create modern open plan living. The accommodation comprises entrance hall, open plan kitchen/sitting/dining room with integrated appliances, three bedrooms and a refitted family bathroom. Outside, to the front of the property is a lawned garden with driveway providing off road parking leading to an integral garage. The rear garden is mainly laid to lawn with a paved patio and timber retaining fence. Further benefits include uPVC double glazed and gas radiator heating. (A/718/M)
* TENURE – Freehold
* COUNCIL TAX BAND – C
Quick Summary
- Property ID:
- 114763
- Property status:
- For Sale
- Location:
- Westcott Way, Abington Vale, Abington Vale, Northampton, NN3 3BE
- Bedrooms:
- 3
- Bathrooms:
- 1














