St. Edmunds Road, Abington
Price: £135,000
Property Description
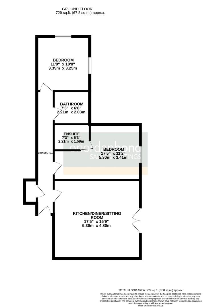
Offered with no onward chain is this two bedroom first floor apartment, in an exclusive gated development of just fourteen high quality apartments, within the heart of the ‘Boot and Shoe’ conservation area. Set back from the road, St. Edmunds Court is within walking distance to the town centre, general hospital and University of Northampton Waterside Campus. Accommodation comprises entrance hall, open plan living area with contemporary style kitchen with built-in appliances, master bedroom with ensuite, further bedroom and a three-piece bathroom suite. Benefits include uPVC double glazing, gas radiator heating and secure allocated parking including visitors parking space behind secure electronic gates. (A/729/-)
Leasehold Information:
* Lease Remaining – 990 years (as of 2025)
* Ground Rent – 300 per annum
* Service Charge – £2000 per annum
* TENURE – Leasehold
* COUNCIL TAX BAND – C
Quick Summary
- Property ID:
- 114638
- Property status:
- Sold STC
- Property type:
- Apartment
- Location:
- St. Edmunds Road, Abington, Northampton, Northampton, NN1 5EF
- Bedrooms:
- 2
- Bathrooms:
- 2












