Leatherworks Way, Little Billing
Price: £164,000
Property Description
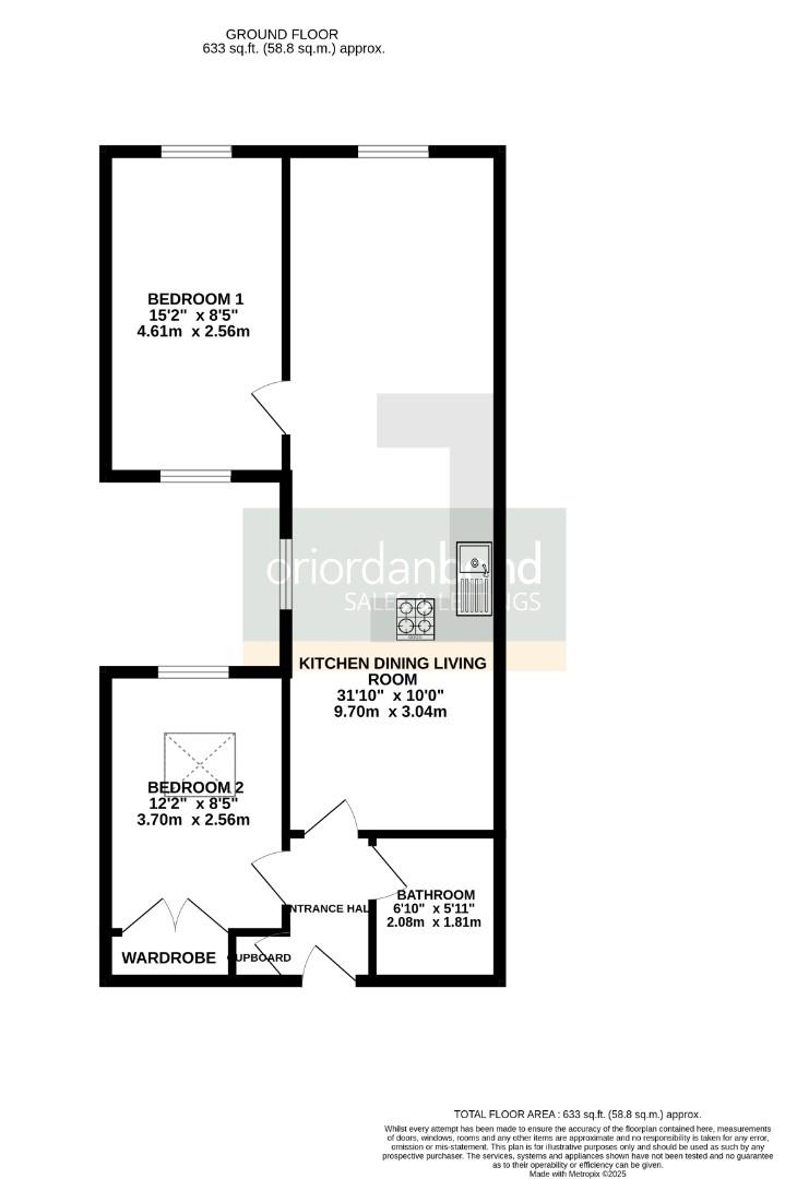
** MOTIVATED SELLER ** An immaculately presented and spacious, first floor apartment in a Grade II listed Art-Deco building, located on the former Pearce Leatherworks site, redeveloped in 2016. The accommodation comprises; a spacious communal reception area and first floor landing, private entrance hall, an open plan living area in excess of 31 feet in length with separate lounge, kitchen and dining areas, two double bedrooms and a family bathroom. The property is fitted in a sympathetic and modern style with aluminium double glazing, gas fired radiator heating, built in wardrobes and benefits from allocated off road parking in a residents car park. (A/650/-)
Leasehold Information: Lease Remaining – 140 years (as of 2025) / Ground Rent – £137.50 (every 6 months) / Service Charge – £1048 (every 6 months)
* TENURE – Leasehold
* COUNCIL TAX BAND – C
Quick Summary
- Property ID:
- 114305
- Property status:
- For Sale
- Property type:
- Apartment
- Location:
- Leatherworks Way, Little Billing, Northampton, Northampton, NN3 9EP
- Bedrooms:
- 2
- Bathrooms:
- 1


















