Berry Lane, Wootton Village
Price: £300,000
Property Description
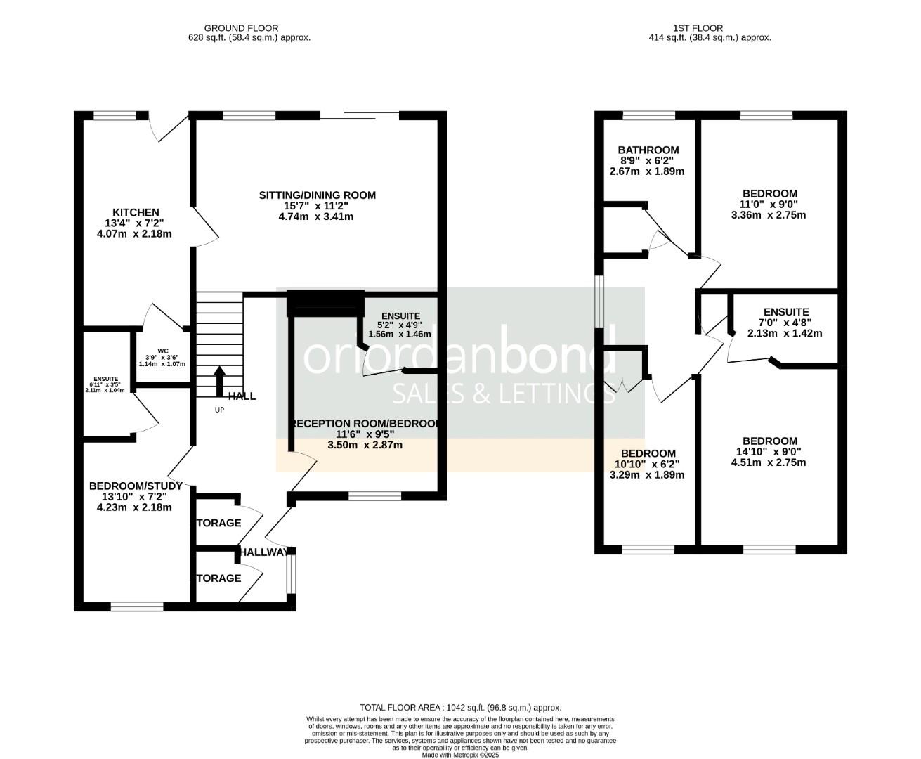
This modified semi-detached home in the heart of Wootton Village is offered for sale with no onward chain. The property is located close to Wootton Primary School and the A45 as well good access to Wootton Valley Country Park. Originally a three bedroom property, the flexible accommodation comprises entrance hall, two receptions/bedrooms both with ensuite shower rooms (originally the sitting room and garage), sitting/dining room, kitchen and cloakroom/WC on the ground floor. On the first floor are three bedrooms with ensuite to master bedroom and a family bathroom. Externally there is an enclosed rear garden with off road parking for several vehicles to the front. Further benefits include gas central heating and uPVC double glazing. (B/1042/M)
* TENURE – Freehold
* COUNCIL TAX BAND – C
Quick Summary
- Property ID:
- 114556
- Property status:
- Sold STC
- Location:
- Berry Lane, Wootton Village, Northampton, Northampton, NN4 6JU
- Bedrooms:
- 5
- Bathrooms:
- 4

















