Barker Road, Earls Barton
Price: £340,000
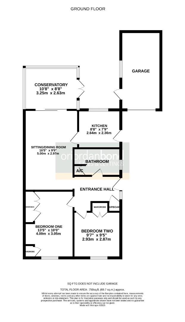
Property Description
O’Riordan Bond is delighted to offer for sale this rarely available two bedroom detached bungalow with conservatory, detached garage and carport. The property is offered for sale with no onward chain with private garden and parking for approximately five cars plus within close walking distance into the heart of the thriving village of Earls Barton. Accommodation comprises entrance hall, sitting/dining room, conservatory, fitted kitchen with access to the side, master bedroom, second bedroom being a good size double and a refitted shower room. The property benefits from uPVC replacement windows and doors and gas central heating. Outside is a part retained wall to the front with mature planting and a large block paved driveway for five cars leading to a carport and large garage with power and light. To the rear is a private garden laid mainly to lawn with shrub borders and patio with access to the garage. (B/750/M)
Earls Barton is a thriving sought after village offering a wealth of amenities to include good range of local shops, tea and coffee shops, farm shops, butchers, doctors, pharmacy, dentist along with good bus services and easy access to the M1, A45 and A14.
* TENURE – Freehold
* COUNCIL TAX BAND – C
Quick Summary
- Property ID:
- 114651
- Property status:
- For Sale
- Location:
- Barker Road, Earls Barton, Earls Barton, Northamptonshire, NN6 0PA
- Bedrooms:
- 2
- Bathrooms:
- 1


























